:::
三峽國光二期青年社會住宅
| 基地位置: | C棟:國安街6號、D棟:三樹路7巷19號、E棟:國安街1號、F棟:三樹一街135號、G棟:國民街1號、H棟:國北街2號 |
|---|---|
| 基地面積: | 22,381平方公尺 |
| 完工日期: | |
| 社區類型: | 住宅 |
| 社宅戶數: | 921戶 |
| 房型規劃: | 套房、二房及三房 |
| 坪數規劃: | 13至40坪 |
| 建築規模: | 地上14層,地下2層 |
使用方向鍵在頁籤間導航,Enter 或 Space 鍵進入頁籤內容,Escape 鍵返回頁籤導航
社宅介紹
設計概念:建物內設有空中綠廊、半戶外景觀平台、空中廊道、風雨走廊,能提供居民良好的互動、休憩交流環境,加上多元的社會福利設施,如非營利幼兒園、公共托育、公共托老、銀光咖啡座、庇護工場及店舖等多元設施,充分融入社區機能需求。建築外觀以公園綠帶地景延伸至社區內為特色,配合一期深灰色丁掛磚為基調,搭配不同顏色之耐候塗料區分棟別;設計融入綠建築、無障礙、通用設計與智慧社區理念,讓不同年齡層與身心障礙的承租戶皆可舒適入住,全面落實新北市打造優質社會住宅的承諾。
樓層規劃
1F:門廳、管委會空間、公益設施、店鋪,2F-14F:住宅
社宅機能
本案位於民生街、國光街及國慶路所圍繞的5處基地,鄰近台北大學及三峽老街商圈,生活機能完善,未來捷運三鶯線通車後,交通將更便捷。
社宅位置
這是一個完全無障礙的互動地圖,顯示 三峽國光二期青年社會住宅 的位置在 24.940083, 121.373778。
您可以使用鍵盤完全操作此地圖:Tab 鍵聚焦,方向鍵移動,Enter 鍵開啟資訊,Escape 鍵關閉資訊。
地圖支援螢幕報讀軟體並提供完整的鍵盤導航功能。
地圖操作說明
鍵盤操作:
- • Tab 聚焦到地圖
- • Enter 開啟標記點資訊
- • 方向鍵 移動地圖視野
- • +/- 縮放地圖
- • Escape 關閉資訊視窗
- • Home 回到標記點位置
快速操作:
將地圖視野移動到標記點中央位置
開啟標記點的詳細資訊視窗
目前縮放等級:
地圖中心:
地圖資訊摘要
位置名稱:三峽國光二期青年社會住宅
經緯度座標:24.940083, 121.373778
地圖說明:新北市住宅及都市更新中心案名:三峽國光二期青年社會住宅基地位置:C棟:國安街6號、D棟:三樹路7巷19號、E棟:國安街1號、F棟:三樹一街135號、G棟:國民街1號、H棟:國北街2號
新北市住宅及都市更新中心

案名:三峽國光二期青年社會住宅
基地位置:C棟:國安街6號、D棟:三樹路7巷19號、E棟:國安街1號、F棟:三樹一街135號、G棟:國民街1號、H棟:國北街2號

案名:三峽國光二期青年社會住宅
基地位置:C棟:國安街6號、D棟:三樹路7巷19號、E棟:國安街1號、F棟:三樹一街135號、G棟:國民街1號、H棟:國北街2號
房型規劃
| 房型 | 坪數 | 戶數 |
| 一房 | 約 13 坪 | 486 |
| 二房 | 約24.5坪 | 48 |
| 約27.5坪 | 232 | |
| 三房 | 約 34坪 | 150 |
| 約 40坪 | 5 |
戶數規劃
| 身分別 | 戶數 | 資格 | 一房 | 二房 | 三房 | |
| 優先戶 | 368 | 詳本申請須知第三條第七款(30%) | 146 | 84 | 46 | |
| 育有未成年二人以上(10%) | 49 | 28 | 15 | |||
| 一般戶 | 549 | 睦鄰戶(5%) | 24 | 14 | 7 | |
| 現職警消人員戶(5%) | 24 | 14 | 7 | |||
| 一般戶(50%) | 243 | 140 | 76 | |||
| 老屋換居 | 4 | 配合新北市政府高齡友善換居政策使用 | ||||
租金規劃
| 房型 | 戶數 | 坪數 | 租金(含管理費)(元) | |||
| 第1階 | 第2階 | 第3階 | 第4階 | |||
| 一房 | 486 | 約 13 坪 | 4,100 | 5,800 | 9,300 | 11,500 |
| 二房 | 48 | 約24.5坪 | 8,000 | 11,300 | 16,000 | 17,900 |
| 232 | 約27.5坪 | 8,500 | 12,000 | 18,100 | 20,100 | |
| 三房 | 150 | 約 34坪 | 11,100 | 15,800 | 22,100 | 24,600 |
| 5 | 約 40坪 | 11,600 | 16,200 | 25,300 | 28,200 | |
保證金
一般戶為2個月租金;優先戶為1個月租金
租約期限
一次簽約為3年,合約期屆滿如符合續租社宅資格得辦理續約,社宅租賃及繼續租賃之合計期間,最長不得超過六年(一般戶)。但符合本法第四條規定之對象,得延長為十二年(優先戶)。
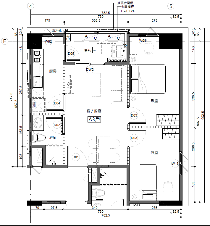
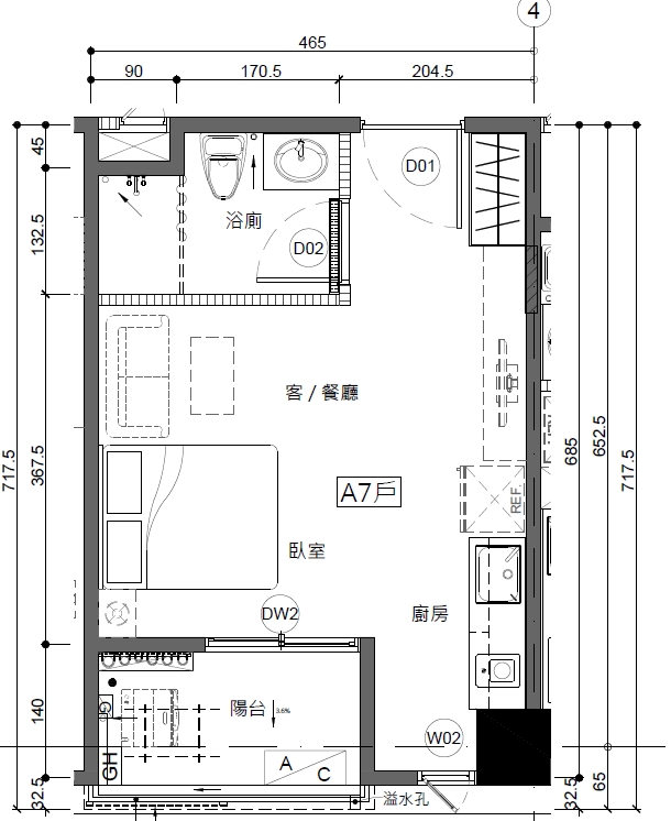
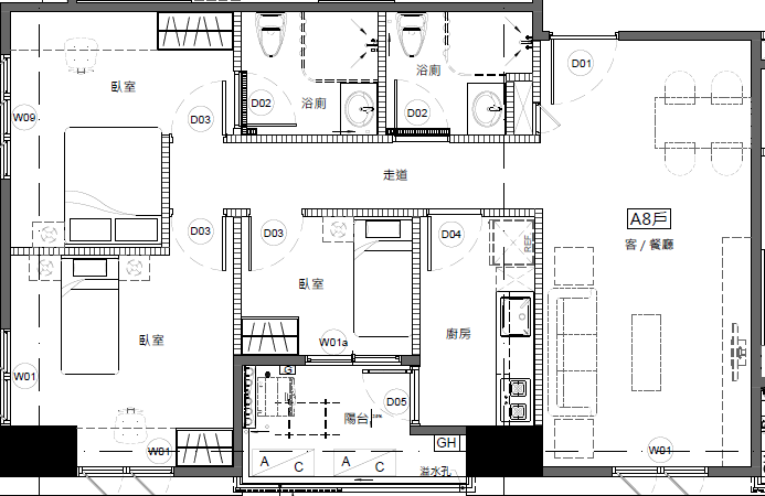
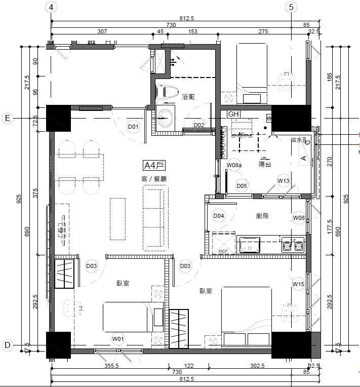
格局圖
套房
二房型
大二房
三房型
大三房
房型照片
套房
二房型
三房型
附加設備選項

衣櫃

床組

熱水器

廚房

天然瓦斯

陽台

冷氣

電梯
社區現況
無資料
Facebook
Line